|
← GO BACK
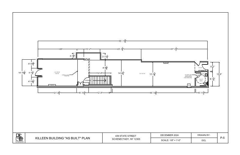
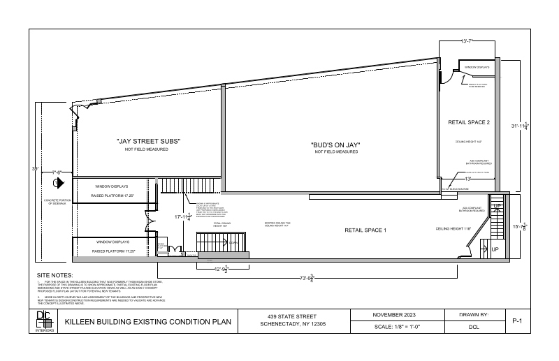
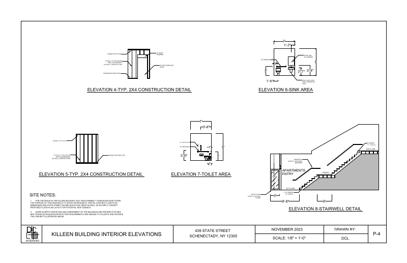
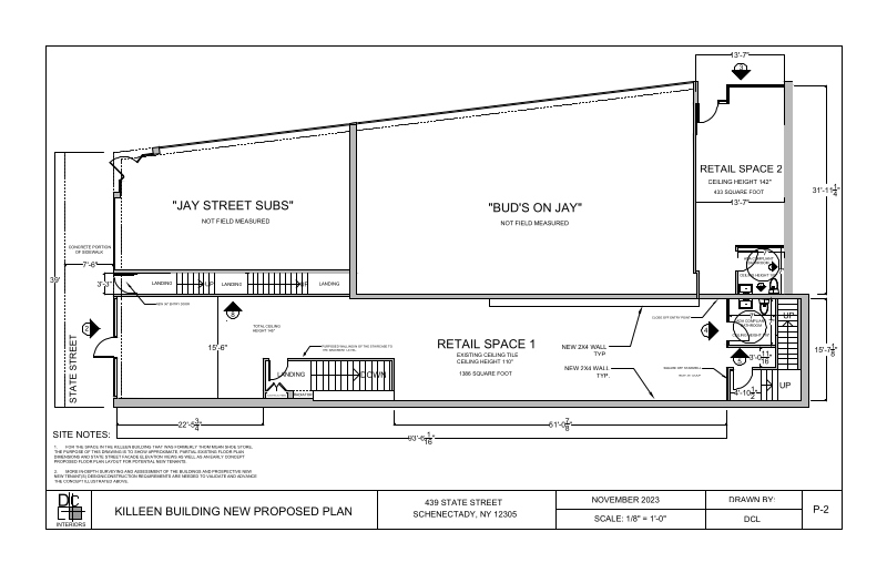
DCL Interiors was hired to draft plans for an interior and exterior renovation of a conjoined retail space to be presented to the city building department. The spaces were joined at a right angle and both were to receive new tenants. The spaces had to be properly divided and be brought up to local and ADA codes. Two new ADA bathrooms were added as well as a stairway for future loft apartments planned for the 2nd and 3rd floor. We wish the new tenants the best of luck in their business ventures in their new retail spaces!
|
|
|




