|
← GO BACK
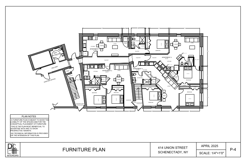
DCL Interiors was hired to produce plans to submit to the local building department for a redesign/remodel of an historic building with existing offices into a luxury loft style apartment complex. We demolished the entire previous office suite structure and created a whole new plan for several new and beautiful apartments with lots of natural light and historic exposed building features. It is our hope that all the new tenants love their new custom designed homes!
|
|
|




