|
← GO BACK
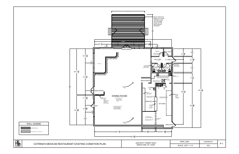
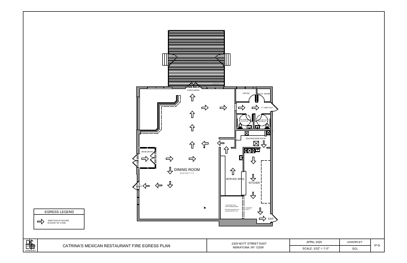
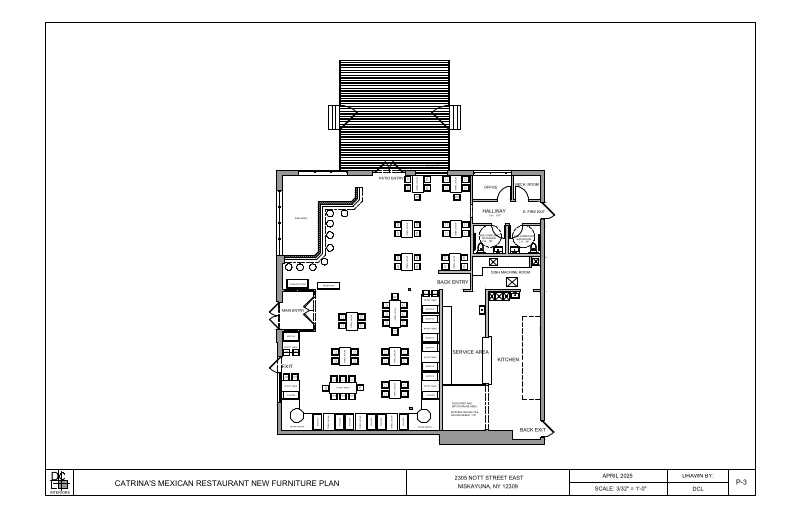
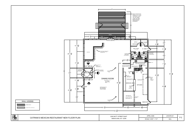
DCL Interiors was hires to draft a set of plans to acquire a building permit for a brand new Mexican Restaurant joining our local community. We worked with the client to determine the needs for his business and worked as a liaison with the local building department to help them acquire all of their documentation. We wish them the best of luck in serving great authentic Mexican Cuisine to our community!
|
|
|




